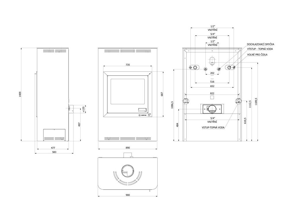
Kamna s výměníkem AQUAFLAM 25, šedá, základní regulace
Krbová kamna Aquaflam s výměníkem a výkonem 25 kW (21 kW do vody/4 kW do vzduchu) v šedé barvě. Vytápěcí schopnost kamen činí až 600 m3. S externím přívodem vzduchu a základní elektronickou regulací. Síla plechu 4 a 6 mm. Včetně vychlazovací smyčky.

Krbová kamna s výměníkem jsou ideální volbou pro efektivní vytápění domova. Kombinují sálavé teplo z krbu s rozvodem tepla do dalších místností pomocí teplovodního systému.
Tato kamna nelze provozovat bez připojení k radiátorům nebo podlahovému topení. Teplovodní výměník slouží k ohřevu vody, která následně cirkuluje v topném systému. Pro zajištění správné funkce a bezpečnosti musí být kamna vždy napojena na topnou soustavu.
Bezpečnost na prvním místě
Přednosti
- Ovládání externího přívodu vzduchu - 120 mm
- Sekundární spalování / terciární přívod vzduchu
- Dvojitý oplach skla předehřátým sekundárním vzduchem
- 3 bezpečnostní prvky
- Přípojky vody na obou stranách
- Bez šamotová technologie - díky absenci šamotové vyzdívky dochází k plošnější předávce tepla do výměníku a zvýšení efektivity ohřevu vody.
Stavíte nový nízkoenergetický dům? Rekonstruujete a zvyšujete podíl izolace pro váš byt?
V tom případě jsou pro vás tato kamna s externím přívodem vzduchu ideální volbou! Díky možnosti přívodu vzduchu z venkovních prostor nedochází ke spalování již ohřátého vzduchu z místnosti a efektivita spalování opět roste. Zároveň vám kamna nebudou brát drahocenný vzduch v místnosti a vy tím pádem nebudete muset tak často větrat.
Základní elektronická regulace hoření
Řídící elektronika jednoduchého ovládání klapky je určena k přímému řízení polohy klapky ovládající přívod vzduchu do spalovacího prostoru teplovodních kamen (poloha potenciometru se převádí na polohu klapky). Základní elektronická regulace je vybavena snímačem teploty, kdy při zvýšení teploty vody ve výměníku dojde k omezení přívodu spalovacího vzduchu a tím se zamezí přehřátí výměníku.
Hlavní přínos
- Jednoduché ovládání přímo na krbové vložce
- Bez připojování do elektrické sítě (baterie v balení)
- Bezpečnostní čidlo, které zavírá klapku při přetopení
- Vše je napájeno bateriemi s dlouhou dobou životnosti
- Možnost objednat adaptér do el. sítě
- Zvukový hlásič přetopení
Nedílnou součástí kamen je návod a technická dokumentace k produktu, kterou naleznete v souvisejících souborech.
Jak na připojení krbových kamen ke komínu
Krbová kamna napojíte ke komínu s pomocí kouřovodů. Nejčastěji pro spojení použijete kouřové koleno či kouřovou rouru. Pokud se průměry vývodu z kamen a vstupu do komína liší, použijete rovněž kouřovou, případně komínovou redukci. Kouřové redukce využijete pro regulaci průměru na kamnech, komínovou redukci pak pro regulaci v místě připojení na komín. Průměr kouřovodu by se ve směru toku spalin neměl nikdy zužovat.
Pro samotné napojení kouřovodu ke komínu použijete zděř, případně přechodku do komína. Místo vstupu pak můžete překrýt růžicí.
Níže můžete vybírat z kouřovodů, které můžete použít k připojení tohoto modelu kamen:
- Kouřové koleno (90 stupňů)
- Kouřová roura 100 cm
- Všechny dostupné rozměry a typy kouřových rour 180 mm
- Redukce kouřovodu
- Redukce a přechodky do komína
- Komínová růžice
- Zděř
O tom, jak postupovat při připojování kamen ke kouřovodu, se můžete dočíst v našem návodu.
Další vhodné příslušenství
Kromě kouřovodů, bez kterých se žádné topení v krbových kamnech neobejde, můžete vybírat z řady dalšího příslušenství, které vám provoz kamen zpříjemní a zjednoduší. Krbové nářadí, krbové zásobníky či krbové koše jsou kromě svého praktického využití i pěkným dekorativním doplňkem.
Pro rozdělání ohně v kamnech můžete využít nabídky zápalek či dalších přírodních podpalovačů. K následnému rozhánění teplého vzduchu po místnosti můžete použít krbové větráky a ventilátory. Nedílnou součástí topení v kamnech je i jejich pravidelné čistění pomocí krbových kartáčů či vysavače na popel.
Jak vám kamna doručíme
Produkt vám doručíme paletovou přepravou (Geis, PPL, Toprans či Česká pošta) a bude zabalen tak, aby při přepravě nedošlo k jeho poškození. Zásilka vám bude doručena za první uzamykatelné dveře. I tak při převzetí věnujte zvýšenou pozornost kontrole možného vnějšího poškození obalu. Pokud se domníváte, že jsou kamna poškozena, zásilku nepřebírejte.
Pokud spolu s krbovými kamny objednáváte i příslušenství (nejčastěji kouřovody) či kterékoliv další zboží z naší nabídky, doručíme vám jej vzhledem k možné neforemnosti celé zásilky dodatečnou balíkovou přepravou. Za tento případný balík není účtováno žádné další přepravné.
Doplňkové parametry
| Kategorie: | Krbová kamna s teplovodním výměníkem |
|---|---|
| Záruka: | 5 let |
| EAN: | 8594155833429 |
| Typ kamen: | Kamna s výměníkem |
| Barva: | šedá |
| Šířka: | 90 cm |
| Výška: | 141 cm |
| Hloubka: | 58 cm |
| ? Parametr pro filtrování: Šířka: | 90 - 99 cm |
| ? Parametr pro filtrování: Výška: | 140 - 149 cm |
| ? Parametr pro filtrování: Hloubka: | 50 - 59 cm |
| ? Celkový jmenovitý výkon: | 25 kW |
| ? Celkový výkon (skupina): | nad 18 kW (výměník) |
| ? Jmenovitý výkon do prostoru: | 4 kW |
| Výměník: | Ano |
| Výkon výměníku (skupina): | nad 20 kW |
| ? Maximální výkon do topné soustavy (výměník): | 23 kW |
| ? Jmenovitý výkon do topné soustavy (výměník): | 21 kW |
| ? Rozsah výkonů výměníku: | 19 - 23 kW |
| ? Vytápěcí schopnost (orientační): | 420 - 600 m3 |
| ? Kouřovod - vývod: | horní |
| Kouřovod - průměr: | 180 mm |
| Palivo: | dřevěné brikety, kusové dřevo |
| Spotřeba paliva: | 7,46 kg/h |
| ? Externí přívod vzduchu: | Ano |
| ? Terciární spalování: | Ano |
| Účinnost: | 78 % |
| Materiál: | ocelový plech 4 a 6 mm |
| Maximální délka polena: | 55 cm |
| Třída energetické účinnosti: | A |
| Rozměry topeniště (Š x H x V): | 600 x 340 x 415 mm |
| Vychlazovací smyčka: | Ano |
| Elektronická regulace: | Ano |
| Emise CO (při 13% O2): | 0.1 |
| Komínová klapka: | Ano |
| Maximální provozní tlak: | 2,5 bar |
| Norma: | EN 13240, BlmSchV - Stufe 2, Ekodesign |
| Objem tepelného výměníku: | 36 l |
| Oplach skla: | Ano |
| Provozní tah: | 12 Pa |
| Průměr externího přívodu vzduchu: | 120 mm |
| Průměrná teplota spalin: | 278 °C |
| Přepravní rozměry (paleta): | 1050 x 820 mm |
| Přikládání: | přední |
| Rozměr skla (Š x V): | 540 x 410 mm |
| Zákon 201/2012 Sb. od 2018: | Ano |
| Plášť kamen: | ocelový plech |
Buďte první, kdo napíše příspěvek k této položce.
Buďte první, kdo napíše příspěvek k této položce.
Cílem společnosti AQUAFLAM, která nabízí kamna s výměníkem je vytvářet takové produktové portfolio, které svou kvalitou, cenou a komplexností uspokojí jak profesionály působící v tomto oboru, tak i naše koncové zákazníky. HS Flamingo je silná a moderní společnost která díky zkušenostem a postavení na českém trhu nabízí mnoho nadstandardních služeb jak pro velkoobchodní odběratele, tak svým koncovým zákazníků. Společnost HS Flamingo s.r.o. je českým výrobcem vysoce kvalitních krbových kamen, kachlových kamen a krbových vložek. Distribuce je vedena přes čtyři hlavní prodejní značky Flamingo, Aquaflam, Flamingo Deluxe a Masterflamme.








